Temukan 10 Inspirasi Desain Rumah di Lahan Terbatas Ini
Keterbatasan lahan untuk tempat tinggal seringkali menjadi suatu permasalahan dalam membangun rumah di daerah perkotaan. Termasuk salah satunya di Vietnam, karena itu beberapa tahun ke belakang, banyak biro arsitektur berbasis Vietnam yang mengakali untuk menyulap sebuah hunian nyentrik di tengah padatnya kota. Mereka tetap memanfaatkan lahan dengan sebaik-baiknya untuk menciptakan suatu hal maksimal dalam hunian yang nyaman.
CASA Indonesia telah mempersiapkan 10 desain pilihan untuk inspirasi hunian di lahan terbatas.
1. Desain rumah split level di lahan seluas 62 m2

Double Roof House / Khuon Studio / Archdaily

Double Roof House / Khuon Studio / Archdaily
Baca juga, Seluas 17 M2! Rumah ini Berdiri di Tengah Kota Taiwan
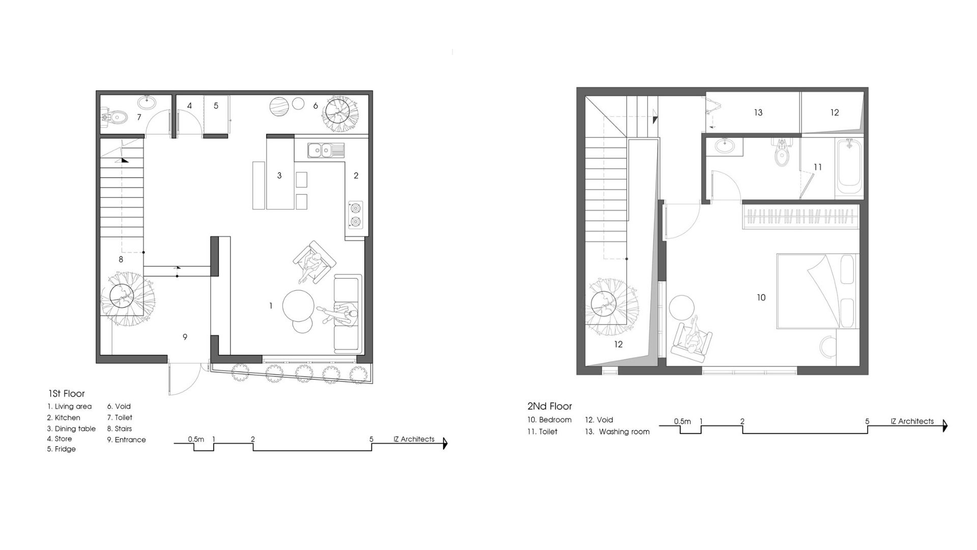
2. Berdiri di atas lahan seluas 49 m2, dengan mengedepankan kesederhanaan zen

7×7 House / IZ Architects / Archdaily

7×7 House / IZ Architects / Archdaily
3. Terdiri dari 4 lantai rumah ini berdiri di atas lahan seluas 280 m2

Tan Phu House / k59 atelier / Archdaily

Tan Phu House / k59 atelier / Archdaily
Baca juga, 15+ Denah Rumah Minimalis di Lahan Sempit
4. Hasil penggabungan rumah sekaligus studio foto di atas lahan 75 m2

Olwen Houses / D1 / Archdaily

Olwen Houses / D1 / Archdaily
5. Fasad unik dari jendela warna-warni untuk rumah di lahan seluas 60 m2


Baca juga, 12 inspirasi taman rumah minimalis di lahan kecil
6. Mengaplikasikan tren rumah tabung di tengah kota Vietnam yang minimalis

3 x 10 House / AHL architects associates / Archdaily

3 x 10 House / AHL architects associates / Archdaily
7. Saigon House, mahakarya arsitektur orang Saigon yang didedikasikan untuk Saigon-Gia Dinh lama

Saigon House / a21studio / archdaily

Saigon House / a21studio / archdaily
Baca juga, Inspirasi Hunian di Lahan 43M2 yang Cukup Untuk 6 Orang
8. Townhouse diatas lahan 4 x meter persegi untuk 7 orang

Less House / H.a / Archdaily

Less House / H.a / Archdaily
9. Mengedepankan ventilasi dan pencayaan dalam rumah dengan 3 blok bertumpuk

Natural Breeze & Lighting Symphony / MW Archstudio

Natural Breeze & Lighting Symphony / MW Archstudio
Baca juga, Bingung Punya Rumah di Lahan Sempit? Simak Solusinya
10. Desain rumah di lahan 60 m2, dengan sistem louver yang menyelimuti fasad

VY Anh House / Khuon Studio / Archdaily
