Seluas 17 M2! Rumah ini Berdiri di Tengah Kota Taiwan
Micro Housing, merupakan salah satu konsep hunian yang tengah muncul di kota-kota besar.
Merupakan salah satu solusi dari permasalahan lahan terbatas, micro housing atau micro apartment/flat yang sedang marak sekarang ini memiliki fungsi yang sangat efisien.

Baca juga, Lebih Menarik, Letakkan 7 Meja Unik Ini Di Hunian Anda
Karena dalam satu unit tersebut sudah lengkap terdapat kamar tidur, kamar mandi, dapur, ruang makan yang tentunya dengan luas yang tidak besar.

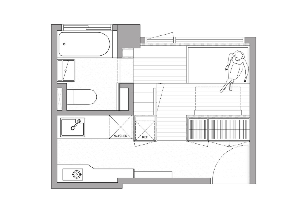
Konsep micro housing pun digunakan oleh arsitek A Little Design, yang membuat karya micro flat di Taiwan. Memiliki luas 17,6 m2, bangunan hunian ini berasal dari studio piano yang di renovasi menjadi tempat tinggal seorang traveler.

Baca juga, Hanya Selebar 2.5M, Rumah Ini Berdiri di Pinggir Pantai
Dengan luas yang amat sangat terbatas, sang arsitek menyulap hunian tersebut berisikan semua kebutuhan sang pemilik rumah, mulai dari kamar tidur, kamar mandi, dapur, area laundry, hingga tempat penyimpanan lainnya.

Oleh karena itu, sang arsitek mengakali untuk menambahkan mezanin di hunian yang memiliki tinggi ceiling 3.4 m agar lebih memaksimalkan ruangan. Hal itu juga diaplikasikan pada area dapur yang menggunakan 2 kabinet berhadapan untuk meletakkan peralatan memasak dan makan yang sering digunakan.

Baca juga, 16 Inspirasi Desain Apartemen Studio untuk Tipe 21
Penyatuan ruang pun digunakan di hunian ini, living room yang juga difungsikan sebagai ruang kerja dan makan ini memiliki meja lipat yang dinilai lebih efisien untuk menghemat ruang.Â

Kehadiran jendela dengan ukuran besar pun memberikan kesan lebih luas serta membiarkan cahaya alami yang membuat rumah terasa lebih nyaman, segar, dan baik.Â