Skip to content

Rumah Minimalis Tanpa Ruang Tamu? Tentu Saja Bisa!

Rumah Minimalis Tanpa Ruang Tamu? Tentu Saja Bisa!

Follow Mother & Beyond untuk mendapatkan informasi terkini. Klik untuk follow Instagram dan Youtube Mother & Beyond


Pernahkah Anda membayangkan memiliki rumah berkonsep minimalis yang tidak punya ruang tamu? Ini mungkin saja terjadi. 

Mengusung ide minimalis membuat desainer serta pemilik rumah mengeliminasi ruang yang tidak selaras dengan gaya hidup dan kebutuhan si penghuni. Belum lagi di masa kini semakin banyak orang yang menggemari untuk berkumpul bersama keluarga dan kolega dalam tatanan yang lebih informal.

Dengan demikian, membuat beberapa tipe ruang seperti ruang tamu dan ruang makan melebur menjadi satu atau salah satunya menghilang.

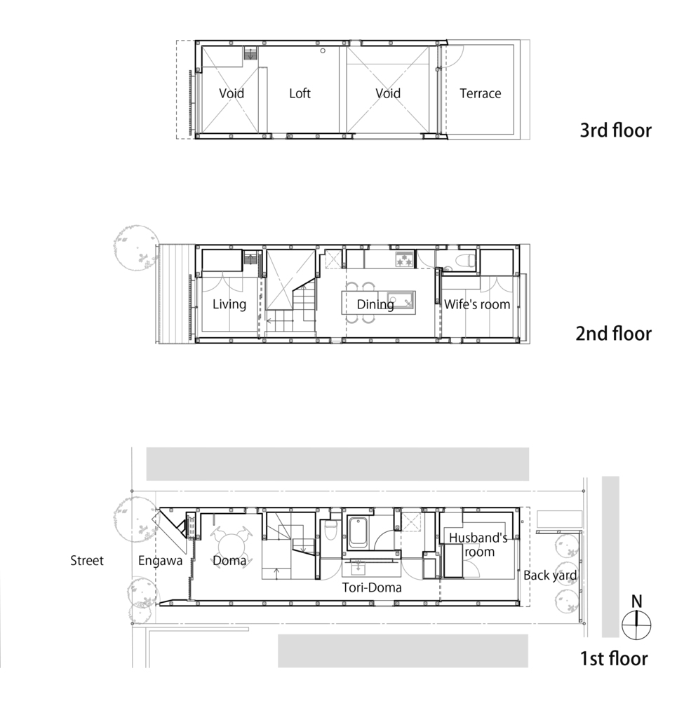
Rumah minimalis berukuran mungil, yaitu 66 meter persegi yang dirancang oleh K+S Architects justru menyulap area yang biasanya dirancang sebagai ruang tamu menjadi ruang semi publik. Sesaat memasuki area pintu masuk rumah, terlihat built-in bench terbuat dari concrete yang menyatu dengan bagian depan rumah.

Di samping teras mungil ini, terlihat sliding door kayu yang sekaligus berperan sebagai pintu masuk pada rumah. Bagian dalam pintu ini memperlihatkan ruang yang disebut doma yang berarti dirt floor yang kerap muncul di area masuk dalam sebuah rumah tradisional Jepang.

Seringkali area ini berukuran kecil. Namun, dalam Kawagoe House yang berada di kawasan Kawagoe, Jepang, area ini justru dibuat lebih luas dan semi terbuka demi mempertahankan hubungan baik dengan komunitas di sekeliling rumah. Ini berkaitan erat dengan konteks kawasan yang identik dengan festival lokal, seperti Koede Kawagoe Fireworks Display sehingga saat acara berlangsung penghuni rumah dengan mudah berinteraksi dengan festival di luar rumahnya.

Mensiasati rumah dengan luas kurang dari 100 meter persegi dan memiliki bentuk tanah yang memanjang, arsitek membagi rumah minimalis ini menjadi tiga lantai. Selain itu, penggunaan partisi diminimalisir untuk menciptakan pergerakan ruang yang lapang. Begitu pula dengan pintu yang dirancang untuk dibuka dan ditutup sembari mengubah layout ruang sesuai kebutuhan.

Sumber foto: Hiroshi Ueda / Archdaily

Share:

Popular This Week

{

More From

}

architecture & interior