Solusi Desain Rumah Masa Depan dari Belanda untuk Anda
Mempersiapkan masa depan, firma arsitektur asal Belanda, Beta merancang rumah yang membentuk apartemen mini yang diproyeksikan untuk keluarga turun temurun. Dinamai Three Generation House, rancangan rumah ini diajukan oleh pasangan suami istri beserta anaknya dan kakek nenek yang akan diajak untuk pindah dari countryside menuju kawasan urban Amsterdam.

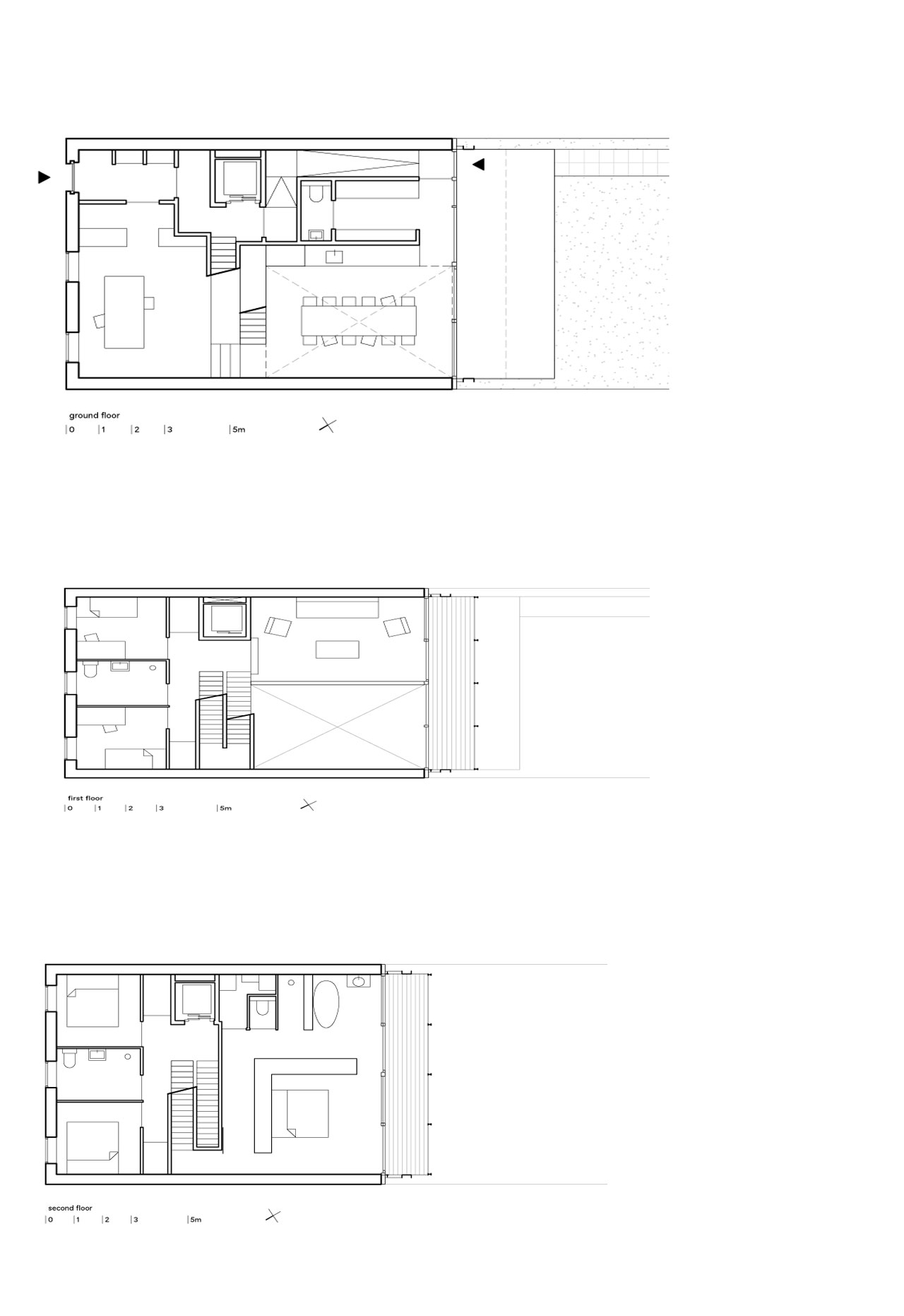
Rumah lima lantai ini dihubungkan dengan satu buah tangga berwarna kuning di tengah-tengah bangunan. Setiap lantai memiliki fungsi yang berbeda. Di lantai atas diperuntukkan untuk tempat tinggal kakek dan nenek yang juga memiliki akses lift sampai ke lantai dasar. Sedangkan empat lantai di bawahnya merupakan tempat tinggal bagi keluarga pemilik rumah tersebut, seperti kamar tidur, ruang bermain, hingga office space.

Denah lantai dasar, 1, & 2
Lantai tiga atau yang juga disebut lantai central dirancang untuk menjadi ruang keluarga dan memiliki area lebih luas di antara lantai lainnya. Selain itu, terkadang lantai ini juga dapat berfungsi sebagai akomodasi saat ada tamu menginap. Lantai dasar merupakan lantai yang sering digunakan oleh para penghuni untuk bersantai, selain di balkon yang ada di setiap lantai.

Pada lantai dasar, terdapat taman yang memanjang untuk taman bermain anak-anak serta area untuk outdoor dining.
Â
Denah lantai 3 & 4
Rumah ini memiliki fasad yang sangat tertutup namun memiliki area belakang yang cukup terbuka. Beta menjelaskan bahwa, fasad yang menghadap utara ini harus seminim mungkin memiliki bukaan agar dapat meredam kebisingan dari jalanan utama. Sedangkan area belakang yang menghadap ke selatan sengaja dibuka untuk memaksimalkan sirkulasi udara di dalam rumah.

Secara estetika sang arsitek menambahkan, perbedaan antara bagian utara dan selatan rumah ini menghasilkan kontras yang indah.