Inspirasional! Berikut Sosok Kartini dalam Dunia Desain
Selamat Hari Kartini!
Sosok Raden Ajeng Kartini adalah seorang figur signifikan dalam kemajuan hak emansipasi untuk wanita di Indonesia. Melalui tulisan-tulisannya, beliau ikut memperjuangkan kehidupan yang terbaik untuk para wanita.
Tak hanya beliau, para arsitek dan desainer wanita turut memperjuangkan visi yang dimilikinya melalui jejak-jejak desain.
Siapa sajakah tokoh arsitek dan desainer wanita yang memukau industri desain kita, baik di domestik dan internasional? Temukan jawabannya dalam daftar berikut ini.
1. Irma Hardjakusumah

Ingin menekuni lebih dalam tentang industri desain, wanita lulusan sarjana arsitektur di Universitas Indonesia ini melanjutkan studi ke jurusan seni dan desain di University of California, Los Angeles, serta Art Center College of Design, California.
Irma Hardjakusumah dipercaya untuk merancang perhelatan pesta Emmy Award 2013 dan Governor’s Ball Oscar 2015 berkat talenta dan ambisinya di Ethos Design, biro konsultan desain miliknya yang berdiri sejak tahun 2011.
2. Lea Aziz

Lea Aziz telah menyaksikan perjalanan industri desain selama 3 dekade dan berprofesi sebagai desainer interior, dosen, pembicara, dan pendiri biro desain interior bernama PT. Elenbee Dwi Panata.
Lea sering diundang sebagai pembicara di seminar luar negeri, seperti International Gathering of Designers di Cangzha, Tiongkok yang membahas tentang desain bandara di Indonesia.

3. Diana Nazir

Diana Nazir merupakan pendiri dari konsultan interior yang lebih dikenal dengan nama Artura. Nama kantor ini berasal dari penggalan kata art yang mewakilkan kecintaan Diana Nazir atas dunia seni. Dalam karir beliau, desain dan seni memiliki hubungan yang sangat erat. Tiap karya seni yang hadir dalam desain beliau, merupakan bagian dari sebuah kesatuan bukan hanya sekedar pelengkap secara visual.
Pada awal bulan April 2019, beliau bersama Indonesian Contemporary Art & Design (ICAD) turut serta dalam Super Design Show di Milan, Italia sebagai kurator dalam menampilkan paviliun bertajuk Essential Jakarta.
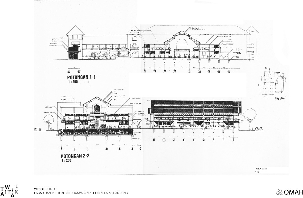
4. Wendy Djuhara

Pemikiran yang begitu dalam dan kritis adalah beberapa hal yang terlihat saat menemui sosok Wendy Djuhara. Ia meniti karir sebagai arsitek dengan bergabung dengan Paramita Abirama Istasadhya (PAI). Pada tahun 2004, beliau memutuskan untuk mendirikan biro arsitek bersama dengan suaminya yang kemudian lebih dikenal dengan Djuhara+Djuhara.

5. Mita Lukardi

Sebagai desainer interior perempuan muda Tanah Air, Mita Lukardi seakan tak pernah puas dengan karya-karya interiornya saja. Berbagai aksi kreatif lainnya kerap dilakoni pendiri M Design Consultant ini semata-mata karena segudang bakat yang dimilikinya seperti tak mampu ia bendung.
Beberapa waktu yang lalu, ia ikut terlibat dalam merancang interior ruang pameran di Museum Tekstil, Jakarta bertajuk Ulos, Hangoluan & Tondi.
6. Daliana Suryawinata

Daliana Suryawinata adalah salah satu pendiri SHAU Indonesia (Studio for Hope in Architecture and Urbanism) yang dibentuk pada tahun 2008 di Rotterdam dan Munich. SHAU banyak mengerjakan proyek-proyek urban dan arsitektur yang bermanfaat dalam memberikan dampak positif bagi lingkungan dan masyarakat sekitar.
7. Kezia Karin
Saat menyaksikan karya milik Kezia Karin, publik mungkin terbiasa melihat karya desain dengan citra feminin. Namun, kesan yang berbeda tercipta saat beliau hadir sebagai seorang seniman. Tak hanya sebagai desainer interior, Kezia turut mengekspresikan dirinya dalam beragam instalasi yang ia ciptakan untuk berbagai pameran.
Salah satunya adalah kerjasama ia dengan Viro dalam menghadirkan booth dari brand ini di pameran Casa Indonesia. Kezia kian mempertegas kreatifitasnya dalam olahan craftmanship yang ia tampilkan dalam karyanya.
8. Santi Alaysius
Duo desainer dari Domisilium Studio kian memperlebar sayapnya dalam dunia desain. Salah satu pendirinya, yaitu Santi Alaysius yang kerap kali mengeksplorasi permainan motif dan warna dalam menciptakan karyanya. Selain desain, ia memiliki ketertarikan dengan dunia fashion yang terlihat dari blog yang ia miliki.
9. Alexandra Champalimaud
Alexandra merupakan seorang desainer interior berdarah Portugis dan Inggris. Beliau juga memiliki firma desain Champalimaud Design yang sudah berdiri lebih dari 30 tahun ini dan telah menghasilkan berbagai karya-karya yang luar biasa.
The life of designer is a life of fight… Fight against the ugliness. Kutipan bernada satir dari mendiang desainer Massimo Vignelli itu memang cukup menggelitik. Tetapi memang itulah adanya, menjadi seorang desainer berarti berduet dengan keindahan. Apapun perspektif keindahan tersebut, tentu saja lahir dari buah pikir dan imajinasi berbaur akulturasi. Kompleksitas itulah yang tampak pada sosok Alexandra Champalimaud.

Waldorf Astoria Chengdu, Tiongkok
Baca juga, Alexandra Champalimaud: Karismanya Sebagai Top Desainer
10. Zaha Hadid
Arsitek wanita yang ikonis ini tentu tidak bisa terlupakan dan dilewatkan dalam daftar arsitek wanita ini. Menutup usia pada tahun 2016, bukan berarti menjadi akhir dari karir arsitektur dari Zaha Hadid. Beliau meninggalkan rekam jejak karya yang begitu ikonis dengan bentuk organik yang identik muncul pada fasad desain miliknya. Beragam karyanya menjadi terobosan dalam dunia arsitektur modern. Salah satunya adalah Dongdaemun Design Plaza, Seoul, Korea Selatan dan masih banyak lagi.
11. Katharine Pooley
Tak hanya sebagai desainer interior, Katharine merupakan seorang petualang yang terus membuka diri untuk beragam pengalaman baru dari berbagai tempat yang pernah beliau kunjungi. Ia telah berkecimpung dalam industri desain interior kurang lebih selama 14 tahun. Gaya elegan dan unik yang tercipta spesifik untuk para kliennya merupakan beberapa faktor di balik karir cemerlang yang dimiliki olehnya. Selain itu, ia juga memiliki lini brand home décor yang banyak terinspirasi dari pengalaman Katharine saat travelling.
12. Fuensanta Nieto

Arsitek wanita ini merupakan salah satu pendiri dari Nieto Sobejano Arquitectos. Dalam karirnya, beliau bersama dengan suaminya terkenal sebagai award-winning architect dengan beragam prestasi yang mereka raih dalam memenangkan beragam kompetisi desain berskala internasional. Salah satu karya ikonisnya adalah Madinat Al Zahara Museum di Cordoba, Spanyol yang seakan membaur dengan topografi gurun sebagai lokasi dari bangunan ini.
